新浪新闻 国内

上海金山公布“4·22”厂房火灾事故调查报告:作业人员违章吸烟引发大火

环球网

关注

原标题:上海金山公布“4·22”厂房火灾事故调查报告:作业人员违章吸烟引发大火

上海市人民政府关于同意《胜瑞电子科技(上海)有限公司“4·22”较大生产经营性火灾事故调查报告》的批复

市应急局:

沪应急〔2021〕48号文收悉。经研究,市政府同意《胜瑞电子科技(上海)有限公司“4·22”较大生产经营性火灾事故调查报告》。请督促有关单位严格执行对责任单位和责任人的处理意见,深刻吸取教训,落实有关措施,确保问题整改到位;请会同有关方面举一反三,进一步加强企业安全生产、消防安全监管,有效防止类似事故发生。

特此批复。

上海市人民政府

2021年9月15日

胜瑞电子科技(上海)有限公司“4·22”较大生产经营性火灾事故调查报告

2021年4月22日13时25分左右,位于金山区林盛路171弄113号的胜瑞电子科技(上海)有限公司阳极氧化车间发生一起火灾事故,过火、烟熏面积约21000平方米,导致8人遇难(含2名消防救援人员)。

事故发生后,各级领导高度重视。中央政治局委员、上海市委书记李强,国务委员王勇等作出批示,要求科学搜救处置,加大救援力度,尽快扑灭大火,全力查找和救助人员,严防次生事故和人员伤亡,同时要求全面落实安全监管责任,抓紧查明火灾原因,深刻吸取教训,堵住风险漏洞,严防各类安全事故发生,确保人民生命财产安全。应急管理部党委书记黄明作出批示,并多次致电关心、指导救援和事故调查工作,要求上海市对该起事故提级调查。市长龚正,常务副市长陈寅,副市长吴清、舒庆、宗明、汤志平等先后就应急处置、事故调查、医疗救治等作出批示。常务副市长陈寅与应急管理部消防救援局领导在事故现场通宵共同指挥火灾扑救和人员搜救工作。

根据《中华人民共和国安全生产法》《中华人民共和国消防法》《生产安全事故报告和调查处理条例》(国务院令第493号)等有关法律法规规定,4月24日,上海市人民政府批复同意对该起事故提级调查。上海市安全生产委员会对该起事故调查进行督办。上海市应急管理局会同市消防救援总队、市公安局、市总工会、金山区人民政府组成胜瑞电子科技(上海)有限公司“4·22”较大生产经营性火灾事故调查组(以下简称事故调查组),并邀请市纪委监委派员参与事故调查工作。

事故调查组坚持“科学严谨、依法依规、实事求是、注重实效”的原则,深入开展调查工作,并邀请全国火调专家参与事故技术调查。通过现场勘查、调查取证、检测鉴定、调查实验、综合分析等工作,查明了事故原因,认定了事故性质和责任,提出了对有关责任人员、责任单位的处理建议和改进工作的措施建议。

经调查认定,胜瑞电子科技(上海)有限公司“4·22”较大生产经营性火灾事故是一起责任事故。

一、基本情况

(一)相关单位基本情况

1。胜瑞电子科技(上海)有限公司

胜瑞电子科技(上海)有限公司(以下简称胜瑞公司)。类型:有限责任公司(外商投资企业法人独资);法定代表人:李斌;住所:上海市金山区亭林镇林盛路171弄113号;统一社会信用代码:91310000575815657F;经营范围:电脑金属配件等。胜瑞公司主要从事电子产品外观件金属机壳的表面处理,主要生产工艺有阳极氧化、注塑、喷砂、清洗等。

2。上海久奈机电设备有限公司

上海久奈机电设备有限公司(以下简称久奈公司)。类型:有限责任公司(自然人独资);法定代表人:程晋凯;住所:上海市闵行区元江路5500号第1幢5844室;统一社会信用代码:91310112557447280B;经营范围:机电设备、五金交电、模具等销售。

3。上海金海保安服务有限公司

上海金海保安服务有限公司(以下简称金海公司)。类型:有限责任公司(国内合资);公司主要负责人:顾健强;住所:上海市金山区蒙山路1121弄1号203、204、205室;统一社会信用代码:913101160559164543;经营范围:门卫、巡逻、守护等。持有上海市公安局核发的保安服务许可证(公保服沪2012118号)。

4。其他单位

(1)日铭电脑配件(上海)有限公司(以下简称日铭公司)。类型:有限责任公司(外商投资企业法人独资);法定代表人:李斌;住所:上海市金山区亭林镇亭华路88号;统一社会信用代码:91310000572654085A;经营范围:计算机软硬件及辅助设备零售等。日铭公司为火灾事故涉及的建筑物所有权单位。

(2)日沛电脑配件(上海)有限公司(以下简称日沛公司)。类型:有限责任公司(外商投资企业法人独资);法定代表人:李斌;住所:上海市松江区申港路3636号;统一社会信用代码:91310000071239318Q;经营范围:计算机软硬件及外围设备制造等。日沛公司牵头负责与金海公司签订《保安服务承包合同》。

(3)立铠精密科技(盐城)有限公司(以下简称立铠公司)。类型:有限责任公司(外商投资,非独资);法定代表人:李斌;住所:盐城市亭湖区盐才路8号;统一社会信用代码:91320900MA1R8A0N2B;经营范围:从事电脑配件科技领域的技术开发、技术咨询等。立铠公司为胜瑞公司、日铭公司、日沛公司等企业的全资母公司,持有胜瑞公司、日铭公司、日沛公司全部股权,统一管理胜瑞公司、日铭公司、日沛公司生产运行。

(4)上海冠智劳务派遣有限公司(以下简称冠智公司)。类型:有限责任公司(自然人投资或控股);法定代表人:时峰;住所:上海市闵行区光华路68号3幢一层115室;统一社会信用代码:91310107MA1G11C918;经营范围:劳务派遣,人才中介等。持有劳务派遣经营许可证(闵人社派许字第00540号)。胜瑞公司生产现场部分工作人员为冠智公司劳务派遣。

(二)相关业务工作情况

1。厂房租赁情况

日铭公司(甲方)与胜瑞公司(乙方)签订《租赁合同书》。双方约定“甲方将位于上海市金山区亭林镇林盛路171弄113号的建筑物租与乙方使用”,租赁期为“2020年1月1日起至2021年12月31日止”。

2。人员情况

立铠公司因生产经营需要,统一调配管理人员在胜瑞公司、日铭公司、日沛公司交叉任职。胜瑞公司现场作业人员为自有员工或冠智公司劳务派遣。

3。保安服务承包合同签署情况

2020年9月,胜瑞公司、日沛公司、日铭公司以及日腾电脑配件(上海)有限公司[①]4家企业(发包方、甲方)联合与金海公司(承包方、乙方)签署《保安服务承包合同》。合同约定“乙方根据合同规定和甲方要求安排其保安人员提供劳务服务,在甲方指定区域内从事安保、搬运、执勤、管制、巡视、管理工作和本合同项下双方所约定之保安服务等”,“乙方提供持建(构)筑物消防员证书之保安执勤人员兼岗工作内容为:火灾报警主机上的异常信息即刻反馈给厂区指定负责人(如:环安稽核员/现场联络人/119联网值班中心等),记录相关信息在登记表上,每月参加一次甲方组织的消防训练”,“提供36名不低于四级建(构)筑物消防员证书之保安在对应消防中控室兼岗执勤(白夜班分开要求最少各2名在对应区执勤)”。

4。承包(供应)商情况

久奈公司是胜瑞公司五金配件等杂项采购的承包(供应)商。2021年3月中旬,久奈公司按照胜瑞公司《采购单维护作业》的要求,开始对胜瑞公司三楼物料输送工作平台的4条流水线进行改造及维修作业,作业内容为加宽流水线皮带,延长流水线并在流水线两边增加插座等。事故发生前,已经完成2条流水线的改造;事故当日,正在进行剩余流水线的改造及维修作业。

(三)建筑基本情况

1。建筑功能布局

起火建筑为胜瑞公司主厂房,4层钢混结构,南北长141米,东西宽80米,高23.9米,建筑面积41538平方米。主厂房按功能分为生产区和办公区,独立设置防火分区。一楼主要为阳极氧化车间,其北侧为注塑车间、办公区;二楼在阳极氧化车间上方为挑空区域,其北侧为中转仓库、办公区;三楼为检验、打包、喷砂、清洗和物流等生产功能区;四楼主要为清洗、喷砂、检验等生产功能区,北侧局部设夹层,下方为办公室和食堂,上方为厨房和食堂。

2。建筑疏散及电梯布局

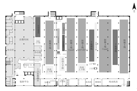
主厂房一楼共设8个安全出口和2处货物通道。安全出口沿东侧外墙设有4个,由北向南分别为东一门、注塑车间东门、东二门、东三门;沿西侧外墙设有3个,由北向南分别为西一门、西二门、西三门;沿北侧外墙设有1个,为北门。2处货物通道分别为西墙北侧的装卸平台和南墙西侧的南门。主厂房设有6部封闭楼梯间和8部电梯。封闭楼梯间分别设在东一门、东二门、东三门、西一门、西三门和北门处,其中东一门、东三门、西一门、西三门处楼梯可达2-4层;北门处楼梯可达2-4层夹层;东二门处楼梯可达2层至屋面。8部电梯分别设在东一门、东二门和西墙北侧的装卸平台,其中东一门处设有3部电梯可达3-4层夹层,东二门处设有2部电梯可达2-4层,装卸平台处设有3部电梯可达3-4层。(图1)

(图1)

3。主厂房消防设施和器材设置

主厂房的消防用电为二级负荷,设置有火灾自动报警系统、水灭火系统、排烟系统及其它消防设施和器材。

(1)火灾自动报警系统:除4层夹层外,其余各层设有感烟探测器、手动报警按钮和声光报警装置,建筑各层均设有消防应急广播。

(2)水灭火系统(室内消火栓系统和自动喷水灭火系统):建筑各层均设有室内消火栓,屋顶设有18吨的消防水箱,建筑2-4层设有预作用自动喷水灭火系统。

(3)排烟系统:除4层夹层采用自然排烟外,其余楼层均采用机械排烟系统,设有21台排烟风机。

(4)其它消防设施和器材:整栋建筑配置有灭火器、消防应急照明和疏散指示标志。

(四)阳极氧化车间基本情况

1。生产工艺

阳极氧化车间主要用于电子产品外观件金属机壳的表面处理,其工艺主要包括电镀与退镀。电镀工艺流程主要有:脱脂、化学抛光、阳极氧化、超声表调、染色、封孔、烘干等。退镀工艺流程主要有:脱脂、退镀、中和、烘干等。

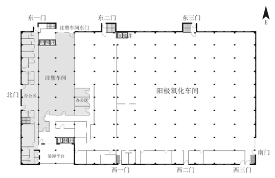
2。生产线布局

阳极氧化车间设有10条生产线,分别为阳级1线、2线、3线、5线、6线,手动打样线,2条T处理线(通过表面处理,使得塑胶与铝件结合力更强)和2条自动退镀线(图2)。

(图2)

3。生产线材质

电镀、退镀生产过程中使用硝酸、磷酸、硫酸、氢氧化钠等酸碱溶液,盛放溶液的槽体多为耐酸碱的PP(聚丙烯)材质。为满足环保要求,生产线设有PVC(聚氯乙烯)围护结构和PP材质废气收集管道。

4。起火的自动退镀线

该自动退镀线位于阳极1线与手动打样线之间,呈东西走向,分为流水作业区和工作平台。流水作业区为直线型,环保围护长19米、宽4米、高5米,围护内东西两端为上下挂位,共设有14个槽位,槽位处设置有8个PP槽、2个金属槽和3台烘箱,另有一个是空槽位(自东向西第7槽),位于自动退镀线中部。围护外南侧为工作平台,可通过工作平台进入流水作业区。该自动退镀线处于断电停用状态,环保围护结构保留,槽内无液体,内部监控被拆除(图3)。

(图3)

(五)当日久奈公司作业情况

4月22日,在胜瑞公司无人员陪同的情况下,久奈公司张鹏、程东务、蔡厚行、葛敏红4人利用原先办理的胜瑞公司“长期洽公证”(承包商人员进出胜瑞公司厂房的证件,其中蔡厚行、葛敏红为冒用他人证件),进入主厂房三楼物料输送工作平台区域进行作业。

二、火灾扑救和人员搜救情况

(一)火灾发现和企业初期处置

4月22日13时27分许,员工宁志龙(火灾第一发现人)在阳极氧化车间途经手动打样线南侧物流通道时,发现手动打样线与阳极1线之间的自动退镀线中间位置有明火,遂赶至西侧自动化上下挂区域通知在此处作业的人员“退镀线处起火了”。员工孙伟伟、李彬等人闻讯后,到附近消火栓箱处取灭火器、铺设消防水带出水,实施灭火,但发现火势较大,无法扑灭,便一边呼喊“着火了”,一边逃生疏散。期间,孙伟伟按下车间内手动报警按钮,并拨打119报警,为第一报警人。

13时29分许,设置在胜瑞公司南门门卫室的火灾自动报警控制主机报警,显示“1层南区手动按钮火警”;值班人员王丽敏随即用手机拍摄报警主机画面,并通过微信向环安部龙彬圣报告;龙彬圣接到报告后,赶到厂区启动了主厂房一楼、三楼排烟系统。期间,控制主机持续报警,但消防控制室值班人员王年普仅操作了控制主机的消音按钮,未将火灾自动报警控制主机由手动状态切换至自动状态,也未拨打119报警。13时45分,电工孟祥奇、甄博文切断了主厂房除应急照明外的各路电源。

同时,车间内各生产班组通过内部电话和口头告知等方式通知车间起火消息,人员开始陆续疏散。胜瑞公司员工唐波经过久奈公司作业人员的作业点,告知起火情况。监控录像显示,久奈公司4名人员未作出疏散反应,发现异常后仍在作业点附近徘徊,直至浓烟完全遮蔽监控探头。三楼断电、充烟后,4名被困人员通过对讲机向余向红求救。

(二)火灾扑救和人员搜救情况

13时30分许,市应急联动中心、市消防救援总队接到报警后,先后调集53个消防救援站、122辆消防车、970余名指战员赶赴现场处置。经过奋力扑救,于23日6时20分将火灾扑灭,疏散救助各类人员492人,堵截了火势向毗邻危险化学品仓库(储量106吨)、配电站、北侧办公区域以及起火建筑四楼蔓延。经检测,事故未造成环境污染等次生灾害。

火灾扑救期间,胜瑞公司确认492名企业员工全部疏散,无人员被困情况,14时6分,突然反馈有久奈公司4名作业人员被困在三楼,但具体位置不确定。现场消防指挥员先期派出2个搜救组分别从南一门、西一门进入三楼搜索救人,由于烟雾较浓,未能发现被困人员。14时55分许,现场指挥部再次派出由消防救援人员丰晨敏、汤伟佳、史经瑶组成的第3搜救组,由2名熟悉情况的企业人员戚朋涛、余向红引导,由西一门进入三楼搜索救人。15时5分,搜救组报告发现被困昏迷人员并要求增援。现场指挥部派出的第4搜救组随即进入内部增援,并与第3搜救组负责垫后沿途整理发光导向绳的史经瑶汇合。在此期间,现场情况突变,搜救路线附近楼板多处爆裂导致三楼烟热急剧增加,迫使史经瑶与第4搜救组人员只能沿原路返回,并于15时24分许撤离至地面,丰晨敏、汤伟佳、戚朋涛、余向红失联。现场指挥部立即派出多支救援小组搜救。23日5时5分,救援小组在三楼北侧中间偏东位置发现1名被困人员(戚朋涛)。6时5分,救援小组在三楼南侧中部搜索发现5名被困人员(余向红、张鹏、程东务、葛敏红、蔡厚行)。6时10分,救援小组在三楼北侧东部发现丰晨敏、汤伟佳。经现场确认,8人均无生命体征(图4)。

(图4)

(三)救援处置评估情况

火灾发生后,消防、应急、公安、医疗、水务、环保等部门及单位调派人员到场参与火灾扑救。各方力量按照本市处置火灾事故相关预案实施分工协作,消防救援力量贯彻“救人第一”的指导思想,采取重点设防、破拆排烟、分片作业、内攻搜救等技战术措施,疏散单位员工492人,堵截火势向毗邻危险化学品仓库、配电站、北侧办公区域以及主厂房四楼蔓延。在组织内攻搜救被困人员过程中,由于火势突破楼板导致救援环境突变,造成2名消防救援人员和2名企业引导人员撤离受阻牺牲。

三、火灾造成的人员伤亡情况及直接经济损失

(一)人员伤亡情况

火灾造成8名人员遇难(含2名消防救援人员)。具体情况如下:

1。丰晨敏,男,33岁,浙江籍,上海市金山区消防救援支队金卫消防救援站副站长;

2。汤伟佳,男,26岁,上海籍,上海市金山区消防救援支队张堰消防救援站特勤一班副班长;

3。余向红,男,31岁,安徽籍,久奈公司员工;

4。张鹏,男,36岁,湖北籍,久奈公司临时聘用人员;

5。程东务,男,53岁,安徽籍,久奈公司临时聘用人员;

6。葛敏红,男,37岁,安徽籍,久奈公司临时聘用人员;

7。蔡厚行,男,48岁,安徽籍,久奈公司临时聘用人员;

8。戚朋涛,男,29岁,河南籍,日铭公司员工。

(二)直接经济损失

火灾造成的直接经济损失约为3113.22万元。

(三)善后工作情况

火灾发生后,金山区迅速成立事故善后处置工作领导小组,组织工作人员、志愿者做好死者家属情绪安抚、心理疏导、生活保障等工作,4月29日,事故各项善后工作基本完成。2021年4月26日,2名牺牲的消防救援人员丰晨敏、汤伟佳被评定为烈士。

生态环境部门对火灾现场周边大气进行监测,结果无明显异常;通过对周边河道封堵、关闭水闸、搭建围堰等措施拦截火灾扑救过程中产生的废水,经现场监测,区域水体水质无异常。

四、火灾原因认定及技术鉴定情况

(一)起火时间认定

经调查,认定起火时间为2021年4月22日13时25分许,主要依据如下:

1。监控录像显示,13时25分38秒,自动退镀线围护挡板北侧观察窗内最早映出火光,其后火光持续增强,直至出现明火。

2。第一报警人孙伟伟拨打119报警时间为13时29分28秒。

3。胜瑞公司厂区消防控制主机最早反馈报警信号的时间为13时29分,显示部位为“1层南区手动按钮火警”;同时,上海FAS中心(城市远程火灾监控系统)监测到该公司上报第一条火警时间为13时29分16秒。

(二)起火部位认定

经调查,认定起火部位为主厂房一楼阳极氧化车间内的阳极1线与手动打样线之间停用的自动退镀线,主要依据如下:

1。监控录像显示,13时25分38秒,自动退镀线围护挡板北侧观察窗出现火光;13时27分13秒,明火从自动退镀线围护挡板内窜出;13时28分24秒,阳极1线员工李鹏透过流水线围护观察窗发现北侧自动退镀线内发生燃烧,并用手指向自动退镀线中部。此时阳极1线无异常。

2。据第一发现人宁志龙、第一报警人孙伟伟、初期参与火灾扑救的员工荆磊磊、李彬、李鹏、张磊等人所述,最早出现明火的位置为阳极1线与手动打样线之间停用的自动退镀线。

3。经现场勘验,主厂房一楼阳极氧化车间全部过火,二楼非挑空区域部分过火,三楼西南侧部分过火,其余部位受高温烟熏,四楼以上基本未过火。主厂房办公区域均未过火。

(三)起火点认定

经调查,认定起火点为自动退镀线围护结构内中部空槽位偏南近地面处,主要依据如下:

1。现场勘验情况

经现场勘验,起火的自动退镀线围护内金属线槽、槽体下方钢梁支架在空槽位处变色严重,向东、西两侧逐渐减轻,且空槽位处下方钢梁支架的变色痕迹呈南重北轻;自动退镀线围护内PP槽体基本烧毁,每个槽体仅残存2个U型金属支架,毗邻空槽位东、西两侧的金属支架均倒塌;根据倒塌顺序及方向能证明槽体南侧最先受火焰高温影响。

2。调查询问情况

监控录像显示,员工宁志龙在物流通道自西向东行走过程中发现着火,并通过自动退镀线围护结构的观察窗驻足查看。经宁志龙现场指认,当时其观察点位于自动退镀线的中部,火焰位于自动退镀线内中部中低位处,在其南侧约2.8米。

3。监控录像分析

监控录像显示,火灾初期透过自动退镀线观察窗映射出的火光,投射至手动打样线北侧围护挡板的中上部,2处火光位置的反向延长线指向自动退镀线围护内南侧近地面处,与宁志龙现场指认的起火点部位相吻合。

(四)起火原因认定

1。排除电气故障

经调查,起火的自动退镀线处于停用状态,其控制电源已切断;起火点周边除上方有电缆桥架外,无其他电气线路及设备;电缆桥架及电气线路未发现故障痕迹;起火前和火灾初期,阳极氧化车间内设施设备、照明灯具等均未见异常。

2。排除物质自燃

经调查,起火的自动退镀线最后一次使用时间为2020年3-4月份,流水线上槽内液体均已放空并清洗。其生产工艺中曾使用的物料有硝酸、氢氰酸、氢氧化钠、无氮中和剂等液体,均无自燃性。经现场勘验,起火点处发现瓦楞纸(纸箱壳)、棉纱手套、棉织物、泡沫板等残骸,与调查询问掌握的起火点处可燃物情况一致,其数量及放置方式均无法满足自燃条件。

3。排除动火作业

经调查,起火当日阳极氧化车间内无动火作业。起火建筑内唯一的改造与维修作业点系久奈公司在三楼流水线作业区,不涉及动火。作业点与起火部位水平距离约50米。起火点上方也无通向三楼的孔洞。

4。人为火种引发火灾的可能

(1)火灾前人员活动情况

阳极氧化车间内的监控探头视场能够覆盖所有进出自动退镀线的路线。监控录像显示,起火当日8时至火灾发生时,仅有孙伟伟、黄春生2人进出过起火的自动退镀线。黄春生火灾前最后一次进入起火的自动退镀线的时间为12时52分,3分30秒后离开,约30分钟后起火(当日人员进出时间如下)。

孙伟伟、黄春生最后一次进入自动退镀线的时间相差47分9秒。据火灾前最后进入的黄春生所述,其最后一次进入自动退镀线中部空槽位处吸烟时未见异常,黄春生吸了一半烟后,将烟蒂扔在空槽位南侧地面,踩了两脚,但未确认是否完全熄灭即离开。

(2)现场勘验及调查实验情况

经现场勘验,起火点处发现3个打火机残骸、1个打火机防风罩和大量烟蒂,有泡沫板以及可被烟蒂引燃的瓦楞纸(纸箱壳)、棉纱手套、棉织物等可燃物残骸。经调查实验,现场提取同类型物质在30分钟内被未熄灭的烟蒂引燃并出现明火,与黄春生离开自动退镀线至发现起火的时间基本一致。

(3)员工违章吸烟情况

经调查,胜瑞公司车间内禁止吸烟并设有金属探测安检门。部分员工通过拆除烟盒中的锡纸和打火机防风罩等手段,违规将香烟和打火机带入车间,并擅自将包括已停用的自动退镀线在内的隐蔽角落作为吸烟、休息点。

(4)放火嫌疑调查情况

经调查,黄春生系冠智公司派遣至胜瑞公司的员工,派遣合同期限为2021年3月20日至2023年3月19日,截至2021年4月20日试用期已届满,未发现其与胜瑞公司及其他员工之间有明显矛盾,也未发现其家庭存在明显矛盾。当日,黄春生最后一次离开自动退镀线后即返回工作岗位,直至获悉起火后与其他员工一起疏散,未发现其存在放火的主观故意;提取起火点处燃烧残留物,经检验无助燃剂成分。据此可排除放火嫌疑。

经调查认定,起火原因为作业人员黄春生违章吸烟引发火灾。

(五)技术鉴定情况

1。上海市公安局物证鉴定中心出具的《检验报告》(沪公物鉴(检)理字〔2021〕294号),对现场提取的燃烧残留物检验,显示“未检见汽油、煤油、柴油等常见助燃剂成分”。

2。上海市公安局金山分局刑事科学技术研究所出具的《尸表检验意见书》[2021(80—87)],检验结论为丰晨敏等8人体表检验“符合在火场中被烧死”。

3.2021年6月25日,上海市消防救援总队完成技术调查,向事故调查组递交《火灾事故认定书》(沪金消火认字〔2021〕第0005号),起火原因为“黄春生违章吸烟引发火灾”。

(六)火灾迅速扩大原因分析

1。生产线材质燃烧热值高、发烟量大、火势发展迅猛。

(1)PP和PVC材料燃烧性能

现场提取材料送上海市建筑科学研究院检测,PP材料氧指数为17.3,极易燃烧,燃烧热值与汽油相当。通过单个PP槽体引燃实验发现,其易被引燃,引燃后火势发展迅速,火焰温度高、烟气浓密、燃烧热值高,有熔融滴落现象,测得火焰最高温度超过1100℃。PVC材料氧指数为37.2,具有一定的阻燃性能。

(2)PP和PVC材料总量

胜瑞公司为满足环保要求,其生产线设有PP材质的废气处理管道、槽体,以及PVC材质的全封闭围护结构(高4至5米)。据估算,一楼阳极氧化车间内PP和PVC材料的总质量达190吨左右。

2。初期火灾蔓延过程分析

当地面可燃物被烟蒂引燃后,火焰及高温直接作用于PP槽体和PVC围护。PP槽体高1.2米且架空设置,空气补充条件良好,四周高位又有PP废气处理管道和PVC围护,燃烧产生的热对流、热辐射相互作用、叠加,使起火部位处很快形成立体燃烧并快速向四周蔓延,短时间内在阳极氧化车间形成大面积的猛烈燃烧。监控录像显示,13时25分38秒,自动退镀线围护挡板北侧观察窗出现火光;5分钟后,明火窜出围护;7分钟后,自动退镀线中部上下已全面燃烧;13分钟后,建筑东侧外围废气处理装置出现明显烟雾;26分钟后,废气处理装置处出现明火。

(七)火势突变,现场救援受阻

1。搜救路线曲折

胜瑞公司三楼南侧、东侧大部分外窗被岩棉夹心彩钢板遮挡,分隔出多个功能区,内部通道转角、分叉较多,加之浓烟不断涌入,能见度逐渐降低。火灾扑灭后,沿着第3搜救组铺设的发光导向绳路径查看,搜救路线曲折。搜救人员所携带的长度约150米的发光导向绳已完全释放,发光导向绳空卷盘距离4名久奈公司被困人员遇难地仍有10米距离。

2。高温烟气发展迅猛

因生产工艺需要,阳极氧化车间二楼挑空区域的西南部位楼板有7处开孔。其中,2处为升降梯开孔,2处为上下挂传输带开孔,3处为废弃的开孔,开孔尺寸最大为6.6米×1.3米,最小为2.2米×1.3米。开孔处均有围护或金属板覆盖。火灾早期一楼高温烟气通过孔洞向三楼缓慢渗透、蔓延。随着火势发展,围护、覆盖物被烧毁或者变形,高温烟气向三楼加速扩散,三楼空间快速充烟。

3。火势突变

火灾扑灭后,在三楼混凝土楼板发现9处爆裂孔洞,发光导向绳途径区域附近有5处,最大一处约3.4米×2.4米。按照我国建筑规范,混凝土楼板耐火极限为1.5小时。15时5分,第3搜救小组发现被困人员时,距离起火时间已超过1.5小时,局部混凝土楼板完整性丧失,出现上下贯通的爆裂孔洞。火焰及高温烟气从爆裂孔洞大量涌入,封锁了撤退道路,导致2名消防救援人员、2名企业引导人员、4名被困人员均未能安全撤离。

五、事故发生的原因和暴露的问题

(一)直接原因

经调查认定,事故的直接原因为作业人员黄春生在车间内违章吸烟,引燃周边杂物并扩大成灾。

(二)间接原因

1。胜瑞公司

(1)消防安全管理职责不明确、制度不落实。企业未依法设立消防安全责任人[②],未制定消防控制室管理制度;消防安全管理人员未履行工作职责,防火巡查流于形式;隐患排查制度不落实,日常检查存在弄虚作假现象;防火管理制度形同虚设,管理人员对员工违章吸烟问题失查漏管,车间内长期存在违章吸烟现象;火灾发生后,未按应急预案要求,切断了主厂房除应急照明外的各路电源,导致消防设施未能有效发挥作用。

(2)消防控制室工作人员严重失职。消防控制室未落实值班值守制度,仅有一名持证人员上岗[③];发生火灾时,值班人员未立即确认火灾,未拨打报警电话,未将火灾报警联动控制开关转入自动状态;消防控制室值班记录存在他人代签现象。

(3)保安服务承包合同内容违反相关规定。所签订的保安服务承包合同内容违反《消防控制室通用技术要求》(GB25596-2010),约定的消防控制室值班人员职责不符合相关规定。

(4)对外来作业人员失控漏管。未落实外来人员进厂作业制度,未按规定进行身份核实;未对外来人员开展必要的安全教育;作业期间未按公司管理规定落实人员陪同。

(5)对承包单位安全生产工作统一协调、管理不力。将生产经营项目发包给其他单位时,未与承包单位签订专门的安全生产管理协议,也未在合同中约定各自的安全生产管理职责。

2。久奈公司

未制定公司安全生产规章制度;聘用的临时人员冒用证件进入胜瑞公司作业;未对作业人员进行必要的安全生产教育和培训;未与发包方签订安全生产管理协议,也未在合同中约定各自的安全生产管理职责。

3。金海公司

所签订的保安服务承包合同条款违反《消防控制室通用技术要求》(GB25596-2010);派驻值班人员严重失职,应急处置不当,造成火灾迅速扩大和蔓延。

(三)相关监管问题

1。亭林镇人民政府

(1)亭林镇人民政府履行消防安全和安全生产职责不力。落实消防安全和安全生产责任制不到位;对承担安全监管职能的部门履职考核制度不完善,内部监督不严密。

(2)亭林镇人民政府专项治理工作不力。贯彻落实《金山区安全生产专项整治三年行动实施方案》不到位,推进落实不系统;未针对厂房仓库消防安全综合治理工作制定专门检查计划,未编制问题隐患和整改责任清单。

(3)亭林镇人民政府对企业安全检查流于形式,未形成闭环,存在“宽松软”现象。2020年对胜瑞公司开展2次安全检查中,检查人员未按规定填写《告知单》,也未进入生产现场进行安全检查。

2。金山区消防救援支队

金山区消防救援支队在贯彻落实《金山区安全生产专项整治三年行动实施方案》中,未有效履行指导、协调亭林镇开展厂房仓库消防安全综合治理工作;指导辖区内电镀企业开展火灾风险辨识重视不够;检查中未能发现企业未依法设立消防安全责任人。

3。金山区生态环境局

金山区生态环境局监督检查不到位,未发现胜瑞公司车间内新增的阳极氧化5、6线环境保护设施未经试生产和竣工验收审批、违规投入生产的违法行为;对企业环保设备设施的消防安全因素重视不够。

4。其他行业管理部门

事故调查组调查了金山区建设和管理委员会对胜瑞公司建筑物的行政许可、执法监督情况,金山区应急管理局对胜瑞公司“双随机”监督检查工作开展情况,未发现履职不当的情形。

六、事故责任认定及处理建议

(一)对事故责任人员的认定及处理建议

1。 建议移交司法机关处理人员(11人)

(1)黄春生,胜瑞公司阳极车间生产线作业人员(劳动关系:冠智公司),从事车间内半成品及成品的运送。违章吸烟涉嫌引发火灾。对事故发生负有直接责任。

(2)王渭华,胜瑞公司环安部副经理(劳动关系:日铭公司),负责环安部门日常消防、环保、安全生产、防火检查等工作。作为胜瑞公司消防安全的管理负责人,未能切实履行消防安全管理职责,消防安全管理不力。对事故发生负有直接管理责任。

(3)金磊,胜瑞公司环安部职业安全课课长(劳动关系:日铭公司),负责厂区消防、环保、检测、安全评估、安全标准化督导及稽查工作。对作业现场长期存在的火灾隐患疏于管控,得知其负责管理的生产车间有违章吸烟等火灾隐患后,未能引起重视并及时落实整改措施,对事故发生负有直接管理责任。

(4)朱俊,胜瑞公司环安部环保系统课副课长(劳动关系:日铭公司),与金磊在管理职能上互有交叉且共同承担管理职能,负责厂区消防、环保、检测、安全评估、安全标准化督导及稽查工作。对作业现场长期存在的火灾隐患疏于管控,得知其负责管理的生产车间有违章吸烟等火灾隐患后,未能引起重视并及时落实整改措施,对事故发生负有直接管理责任。

(5)龙彬圣,胜瑞公司环安部职业安全课助理管理师(劳动关系:胜瑞公司),协助落实厂区消防安全、火灾隐患排查整改、职工个人安全防护、防火巡查记录等工作。对已发现的火灾隐患及整改意见未落实。对事故发生负有直接管理责任。

(6)程鹏,胜瑞公司环安部职业安全课课员(劳动关系:日铭公司),负责厂区消防工作巡查。日常消防巡查工作不到位,未能及时履职并制止违章吸烟现象。对事故发生负有直接管理责任。

(7)王洋,胜瑞公司总务部助理管理师(劳动关系:日铭公司),负责管理外包保安、绿化等工作。未按合同要求审核外包保安人员资质,明知消防控制室有资质保安存在日常缺岗情况,虚设保安人员应对消防检查,默认无资质人员上岗作业。对事故发生负有直接管理责任。

(8)黄平,金海公司亭林招商主管(劳动关系:金海公司),负责向胜瑞公司派遣保安(包括消防控制室值班人员)。未安排符合资质人员从事消防控制室值班工作。对事故发生负有直接管理责任。

(9)王年普,金海公司保安(兼职,无劳动合同),持有建(构)筑物消防设施操作员4级证书,事故发生当日受金海公司委派,负责胜瑞公司消防控制室值守。严重失职,未按照规定实施消防控制室值班应急程序,应急处置不当。对事故发生负有直接责任。

(10)杨美娟,胜瑞公司总务部后勤服务课课长(劳动关系:日铭公司),负责管理外包保安、绿化、厂区稽核。未认真审核保安服务承包合同;未按合同要求对外包人员资质进行审核和监督,默认无资质人员上岗作业,将外包事宜转交下属后放任不管。对事故发生负有直接管理责任。

(11)李顺财(台湾),立铠公司环安中心(环安处)协理(劳动关系:立铠公司),全面负责胜瑞公司消防、安全、环保工作。未能切实履行消防安全管理职责,消防安全管理不力。对事故发生负有直接管理责任。

2。 建议行政处罚人员(2人)

(12)李斌,胜瑞公司法定代表人。督促、检查本单位消防和安全生产工作不力,未能及时消除火灾隐患。对事故发生负有领导责任。

(13)程晋凯,久奈公司法定代表人。督促、检查本单位安全生产工作不力;未组织制定本单位安全生产规章制度;未组织制定并实施本单位安全生产教育和培训计划。对事故发生负有领导责任。

建议上海市应急管理局对李斌、程晋凯依据相关法律法规[④]给予行政处罚。

3。 建议问责处理人员(6人)

(14)王世敏,中共党员,亭林镇人民政府镇党委副书记、镇长。负责亭林镇政府全面工作。履行消防安全和安全生产职责不力;贯彻落实《金山区安全生产专项整治三年行动实施方案》不到位,推进落实不系统。对事故发生负有领导责任,建议予以问责处理。

(15)杨连杰,中共党员,亭林镇人民政府副镇长,分管镇综合经济、工业、商务、科技、安全、消防等工作。落实消防安全和安全生产责任制不到位;对承担安全监管职能的部门履职考核制度不完善,内部监督不严密;贯彻落实《金山区安全生产专项整治三年行动实施方案》不到位,未督促制定针对厂房仓库消防安全综合治理工作的检查计划,未督促编制问题隐患和整改责任清单。对事故发生负有领导责任,建议予以问责处理。

(16)乔国强,中共党员,亭林镇城市运行综合办公室主任,负责镇应急管理、安全生产、城市运行安全、食品和药品安全管理、重点工作推进等工作。履行消防安全和安全生产职责不力;落实消防安全和安全生产责任制不到位;未针对厂房仓库消防安全综合治理工作制定专门检查计划,未编制问题隐患和整改责任清单;内部监督不严密,对检查人员未依规履职情况失察失管。对事故发生负有管理责任,建议予以问责处理。

(17)姜诚,群众,亭林镇城市运行应急管理中心检查人员。负责东部片区(胜瑞公司所在片区)安全监管工作。安全检查流于形式,未形成闭环。2020年对胜瑞公司开展2次安全检查中,未按规定填写《告知单》,也未进入生产现场进行安全检查。对事故发生负有管理责任,建议予以问责处理。

(18)张铭,中共党员,金山区消防救援支队防火监督二科助理工程师,负责指导亭林镇消防安全工作,未有效履行指导、协调亭林镇开展厂房仓库消防安全综合治理工作,指导辖区内电镀企业开展火灾风险辨识存在不足,检查中未能发现企业未依法设立消防安全责任人。对事故发生负有管理责任,建议予以问责处理。

(19)张阿毛,群众,金山区生态环境局执法大队一中队中队长,承担辖区内生态环境保护执法职责,依法开展生态保护等方面的日常监督检查。在2015年1月至2017年9月期间,对胜瑞公司多次开展现场监督检查,未发现该公司车间内新增的阳极氧化5、6线环境保护设施未经试生产和竣工验收审批、违规投入生产的违法行为,负有监管不到位的责任。对事故发生负有管理责任,建议予以问责处理。

对上述6人问责处理的相关材料移送市纪委监委。

4。 建议企业依据相关规定处理人员(10人)

(20)王运财,胜瑞公司生产中心检包课课长(劳动关系:胜瑞公司),负责对区域内作业人员进行安全培训及巡线工作,检查并制止员工违章行为。未能及时发现并制止作业人员违章吸烟。对事故发生负有管理责任。

(21)李彬,胜瑞公司生产中心阳极一课课长(劳动关系:胜瑞公司),负责阳极一课区域内产线现场的巡查、管理。未能及时发现并消除自动退镀线现场长期存在的火灾隐患。对事故发生负有管理责任。

(22)王应斌,胜瑞公司生产中心阳极部经理(劳动关系:胜瑞公司),负责阳极部区域生产现场的日常管控。未能督促下属管理人员及时发现火灾隐患,发现并制止作业人员违章吸烟。对事故发生负有管理责任。

(23)钟云,胜瑞公司生产中心制造处资深经理(劳动关系:日铭公司),负责包括阳极部在内的多个区域的管理工作。未能有效督促阳极部管理人员履行消防和安全生产管理职责。对事故发生负有管理责任。

(24)黄玉铭(台湾),胜瑞公司副总经理(劳动关系:立铠公司)。对分管产线内各级管理人员履职不力的情况失管失察。对事故发生负有管理责任。

(25)王志印,胜瑞公司生产中心装饰一课班组长(劳动关系:胜瑞公司),事故发生前负责三楼检验流水线改造现场配合工作。未落实胜瑞公司的承包(供应)商进厂作业管理制度。对事故发生负有管理责任。

(26)刘金童,胜瑞公司生产中心检验课课长(劳动关系:胜瑞公司),负责三楼检验流水线管理工作。未督促落实胜瑞公司的承包(供应)商进厂作业管理制度。对事故发生负有管理责任。

(27)吴香香,日沛公司总务部后勤服务课高级管理师(劳动关系:日沛公司),具体承办采购金海公司保安服务承包工作。承办的保安服务承包合同内容违反相关规定。对事故发生负有管理责任。

(28)马丽,日沛公司总务部经理(劳动关系:日沛公司),负责与金海公司签订保安服务承包合同的审核工作。对保安服务承包合同审核把关不严。对事故发生负有管理责任。

(29)刘书宏(台湾),胜瑞公司法务主管(劳动关系:立铠公司),负责与金海公司签订保安服务承包合同的法律审核工作。对保安服务承包合同内容合规性审核把关不严。对事故发生负有管理责任。

建议胜瑞公司及其上级公司对上述10人依据企业管理规定给予处理,处理结果报上海市应急管理局。

(二)对事故责任单位的认定及处理建议

1。胜瑞公司

企业消防安全管理职责不明确、制度不落实。保安服务承包合同内容违反相关规定。对承包单位安全生产工作统一协调、管理不力,对外来作业人员失控漏管。将生产经营项目发包给其他单位时,未与承包单位签订专门的安全生产管理协议,也未在合同中约定各自的安全生产管理职责。对事故发生负有责任。

2。久奈公司

未制定公司安全生产规章制度。聘用的临时人员冒用证件进入胜瑞公司作业。未对作业人员进行必要的安全生产教育和培训。未与发包方签订安全生产管理协议,也未在合同中约定各自的安全生产管理职责。对事故发生负有责任。

建议上海市应急管理局依据相关法律法规对胜瑞公司、久奈公司给予行政处罚[⑤]。

3。金海公司

所签订的保安服务承包合同条款违反《消防控制室通用技术要求》(GB25596-2010);派驻值班人员严重失职,应急处置不当,造成火灾迅速扩大和蔓延。

建议公安机关依据相关法律法规对金海公司给予处理。

(三)其他处理建议

事故暴露出地方政府和有关部门日常安全监管不力,执法“宽松软”,对企业长期存在的风险隐患漏管失察。

1。建议亭林镇人民政府向金山区人民政府作出书面检查。

2。建议金山区消防救援支队向金山区人民政府、市消防救援总队作出书面检查。

3。建议金山区生态环境局向金山区人民政府作出书面检查。

七、事故防范和整改措施

(一)落实企业安全生产和消防安全主体责任

各类企业要全面履行安全生产和消防安全职责,严格按照有关法律法规和标准要求,设置安全管理机构,明确各级、各岗位消防安全责任人及其职责,制定完善消防安全制度、消防安全操作规程、灭火和应急疏散预案,强化从业人员安全教育培训和演练,定期开展防火巡查、检查,及时消除火灾隐患。针对事故所暴露出来的问题,企业要认真排查并整改火源管理过程中存在的漏洞,严格按照《消防控制室通用技术要求》落实值班值守和应急处置工作,强化临时进场作业人员安全教育、核查、监护等措施,对涉及工艺改造或新增设施设备的要依法履行申报手续。

(二)加强政府对安全生产和消防工作的领导

金山区各级政府和部门要认真贯彻《上海市党政领导干部安全生产责任制实施细则》《上海市消防安全责任制实施办法》,明确政府和部门在安全生产和消防工作中的职责,健全完善风险评估、巡查督导、约谈警示、挂牌督办等制度,将消防工作成效纳入各级党政领导干部绩效考核范畴。要扎实推进安全生产专项整治三年行动,强力攻坚厂房仓库消防安全专项整治,建立完善问题隐患、整改措施、制度标准“三项清单”,切实从根本上消除事故隐患。要贯彻落实《关于加强基层消防安全综合治理工作的指导意见》,明确街镇消防安全管理的专责部门和人员,鼓励通过政府购买服务的形式加强消防安全管理,配齐配强监管力量。要针对区域特点,统筹加强消防救援队伍装备和专业攻坚力量建设。

(三)强化安全风险辨识和部门监管

金山区各职能部门要坚持“管行业必须管安全、管业务必须管安全、管生产经营必须管安全”总体要求,在各自职责范围内依法依规做好本行业、本系统的消防安全工作。要组建各行业领域的专家团队和工作组,对酸洗、碱洗工艺流程以及使用新工艺、新材料的企业开展风险辨识工作。要建立风险研判会商和联动执法协作机制,在规划建设、产业准入、行政许可、监督管理过程中充分考虑消防安全因素,满足有关消防安全性能和要求。要加大监督执法力度,部署开展行业消防安全综合治理,对具有较大火灾危险的企业,要提高安全设防等级。

(四)普及消防安全宣传教育

各级政府和相关部门要充分发挥传统媒体和新媒体作用,针对性开展消防安全知识宣传普及和火灾事故典型案例警示教育,宣传火灾报警、初期火灾扑救和火场自救逃生知识,提高社会公众消防安全意识和逃生自救能力。要督促企业加强全员岗位安全管理和应急技能培训,提升员工检查消除火灾隐患和第一时间先期处置火灾险情的应急能力。要加大舆论宣传和监督力度,发动群众群防群治,及时举报和曝光重大火灾隐患,督促企业切实履行社会责任和落实消防安全主体责任。

胜瑞电子科技(上海)有限公司“4·22”较大生产经营性火灾事故调查组

2021年8月25日

[①] 日腾电脑配件(上海有限公司)类型:有限责任公司(外国法人独资);法定代表人:程琪方;住所:上海市松江区茸华路1168号;经营范围:从事电子领域内技术开发,技术咨询,技术服务等。

[②] 《中华人民共和国消防法》第十六条第二款:“单位的主要负责人是本单位的消防安全责任人”

[③] 《消防控制室通用技术要求》(GB25506-2010)“4.2.1消防控制管理室应符合下列要求: a) 应实行每日24h专人值班制度,每班不应少于2人,值班人员应持有消防控制室操作职业资格证书;”

[④] 依据《中华人民共和国安全生产法》第九十二条之规定,发生较大事故的,处上一年年收入百分之四十的罚款。

[⑤] 《中华人民共和国安全生产法》第一百零九条第二项“发生较大事故的,处五十万元以上一百万元以下的罚款;” 《生产安全事故罚款处罚规定(试行)》第十五条第二项“造成6人以上10人以下死亡…,处70万元以上100万元以下的罚款。”