古镇再生|泗泾:古建筑木作法展小记
澎湃新闻
原标题:古镇再生|泗泾:古建筑木作法展小记

登上安方塔鸟瞰泗泾“三宅“ 本文图片均由作者提供
10余年前,一位热心古建的上海交大教授,收集了从徽州老宅拆解出来的千余木构件,并将之赠予上海交通大学,希望有朝一日能够在校园得以异地复建。老宅落架时,并没有留下准确的测绘信息, 影像也极少。当年拆除这些老建筑时,虽非文保建筑,不至于罪过,也毕竟是时代的局限。这些原境已然缺失的木构件,如果没有再经工匠之手,重新立架,那终究也只是一堆木头而已。然而可惜的是,在仓库存放颇多年头的木构件,大多已拼不出一个完整的建筑了。如何将这些构件重新利用,成了一个留到今日的难题。恰巧这些年上海交大建筑文化遗产保护国际研究中心联手上海交大历史建筑勘察设计研究院,为松江泗泾古镇做了总体的规划设计及古建筑修缮设计。其中“程宅、管宅、孙士林宅”三座建于明清时期的古宅,作为泗泾古镇首批启动修缮的文物保护点,主体结构已于2018年修缮完成。泗泾当地政府有意将三宅与高校资源对接,推进文化产业建设,其中拟将孙宅作为上海交通大学建筑遗产保护教学科研实践基地。于是,三宅之一的孙宅成了这些零散的木构件的一个可能的落脚之地。

修缮完成后的孙宅
带着这样的想法,今年三月的时候,我第一次去了泗泾。9号线泗泾站下来,地铁站距离古镇大约还有2公里。 泗泾古镇的下塘村是上海为数不多的中国历史文化名村,当年也曾是”百业辐辏,户口繁盛,街巷纵横,桥梁相望”之处。然而今天的古镇给人的第一印象是街道的萧条,没有想象中古镇的生气。老街南侧的下塘街,还残留着一丝烟火气,在颇具特色的沿河骑楼街上,尚有本地居民三三两两,在廊下闲坐。
泗泾下塘街的骑楼廊子
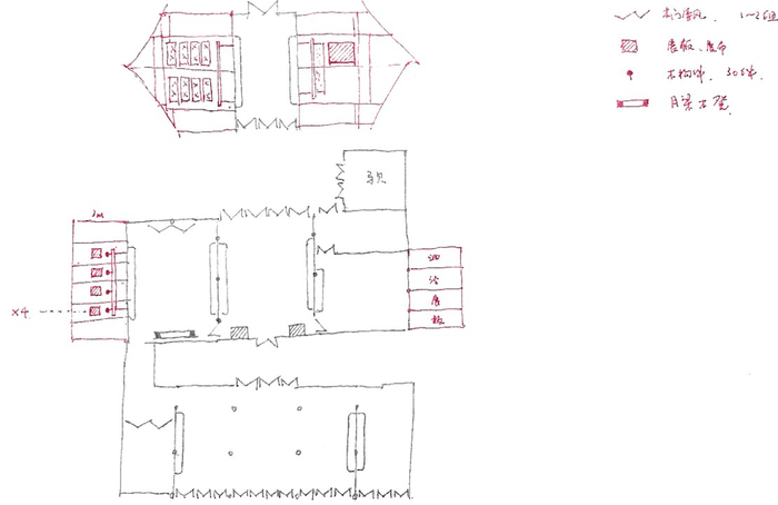
骑楼西侧的尽头,是古镇西首的三个刚修缮完成的老宅,孙宅位于中间。孙宅的空间都是单间房,并不适合展厅及活动,且空调的位置,灯光的布置也都成问题。总之,想要再利用为一个展示空间,并不容易。回到公司,我试着画了第一张关于孙宅展厅空间改造的构想。以泗泾孙宅沿老街的入口序厅,挑高的斜屋架,适合挂上牌匾;第二进为三开间,隔墙分为三个独立展厅,每个展厅穿斗式的构架之间有4块隔墙,各放一个构件,以及一副图;沿河的空间,则计划打开现有的隔墙,形成一个三开间的大空间,这里木构件可以自由地悬挂起来。三个空间,由窄至宽,层层递进,最终将人引到骑楼廊下,对着曾经的水路要道:泗泾塘。

孙宅策展草图
孙宅的空间改造方案得到了镇里的支持。5月底的时候,改造工程展开的同时,我们去了安放木构件的仓库,在堆叠的木构件中试图寻找出关于类型和功能的线索。太大的主梁显然并不合适在孙宅这样的民居中展出,小型的各类木构件是合适的选择。这些拼不出建筑的构件,它们脱离了最初制作的用途,却也保留了纹饰,质感以及时间的信息,成为了“古物”。我们将可以展示利用的木构件一一摊开在地,试图理解沉默的构件,重构它们与其他构件的交接关系,这种关系是空间的,也是类型学的。
木构件摊开在地逐一记录
明确了展厅的空间和展品,我们开始了一项专题研究,中心研究木头的陶奕同学和研究上海绞圈 房子的雨珏同学,开始对各个木构件进行测绘和建模。幸运的是,掌管木构件的张再助,正是徽 州绩溪大木作师傅出生,在上海打拼多年的他,对于这些家乡的构件之间的交接关系了如指掌。 在张师傅的协助下,我们将现场的实证研究与书本中徽州构件的专业术语相对应,以此推导出每 一类构件的名字及其在木作体系中的作用和位置。
清洁表面后,在孙宅的院子里晾晒木构件
六月中,对于孙宅的展厅的适应性改造正在紧张进行。当现场施工单位按计划拆除沿河楼明间的 隔墙时,图面上反复论证过的拆除方案,却遇到了问题。原来,看似结实的楼板木梁,其上部却 是以木板拼成,也就是说,梁的截面只有原来估计的一半,而二楼的活荷载,在隔墙拆除后,力 流将经由梁转嫁到柱子上。是坚持做大空间还是按原样恢复隔墙?这是一个关键问题。这个之前 的“走漏眼”,也让我们重新审视孙宅的空间。
孙宅的空间格局
孙宅的空间和隔壁邻居程宅和管宅一样,都是三进式的。当年,货物从泗泾塘卸下来,孙宅的主人沿下塘街就开了一间南北货铺子,宅子也即前店后宅的格局。因此从格局上来看,孙宅的第一进其实是沿河一进,第二进是堂屋楼房,第三进才是沿老街的平房。比起单间的布局,当年第一进的沿河铺子室内是个大空间的可能性更高。我在沿河厅隔墙拆除后的柱子内侧,发现了民国报纸的残片,这似乎也是一个印证。于是打开沿河的空间,也有了依据。我们找来当时正在修缮浦东傅雷故居的王师傅,用老木料对于受力薄弱的梁做了加固,维持了沿河的三开间连通的空间。
恢复三开间后的沿河厅
那边厢,研究团队也遇到了问题。一些构件光从外形,既可能用在A位置,也可能用在B位置。位 置不同,名称也不一样。这个时候,就需要一些判断。对于不能定性的构件,我们将它可能的位置与其他构件的交接方式同时绘出,将答案留给观众。于是图上再现的工作就不是一一对应的关系,而成为了一次探索的旅程,一次在图纸上的带有想象力的重构。关于名称,南方木构件的称谓与北方官式称谓有所不同,书本上的学名和师傅口中的土名不同, 也因此需要更多地时间寻找合适的命名,譬如牛腿,雀替,挑头,垂花,月梁,坨墩。这些构件 命名的方式大抵类似,既生动而又雅致。也有些构件找不到对应的名称,这个时候,我们则根据 它的位置及作用赋予它一个形象的名字。比如在柱顶檩条下的三角形构件,我们从它的“苏式表兄”山雾云的名称得到启发,将它取名为山尖,取意山墙上尖尖的构件。
总之,我们一方面避免做一个“官式标准称谓”的展览,希望这些构件的叙述能反映它们的地方 特征,另一方面,我们又不希望描述的文字太过晦涩而变得太过小众。具体操作上,我们以南方 古建代表文献《营造法原》为基础,辅以徽州民居相关资料,为每个木构件及其纹样的意义寻找 合适的阐述方式。

实物结合图解的展示方式
而展示的方式上,我们希望这个展览既是专业的,又是亲近大众,老少咸宜的。每一类构件,以 一个实物,一副轴测图加一个清晰的标题与一句文字表达。我们不将这些木构件视作为文物而罩 在玻璃罩里。我们想要的是墙上的图解展示可以与台上的木构物件形成一种对话关系,而观者可 以触摸它们,并在其中可以自由的观察与想象。同时,我们希望这些重新安置的木构件,不论是 序厅山墙上高悬的木牌匾,还是沿河厅吊挂的“抱梁云”,可以在孙宅这一传统建筑空间中,找 到它最合适的展示方式,让这些漂泊他乡的物件们在孙宅获得新的意义。
布展工作是细致而繁琐的。我们与张师傅团队的三位徽州师傅胡和平、胡元明、胡开元一起完成了这一工作。定框料,做样板,比选印刷材质,挂木构件,布灯调灯不一而足。
我们的团队在繁杂的工作之余参与研究和策展工作,在有限的时间、预算之间来回拉锯,力图呈现一个相对高品质的效果。
八月,布展临近结束的一天,工作至夜,在沿河厅与徽州师傅在明代方桌上吃外卖,那一刻觉得还蛮奢侈。
开展之后,看到有小朋友兴奋地叫着“牛腿”“雀替”的名字,有外地的客人回忆以前自家房子里的那些木作,有市区的古建筑爱好者做好功课专程来参观,有本地住民现场回忆起孙宅早年的样貌,也有新泗泾住民饶有兴致地探索本地历史。孙宅成了一个让地方古建筑同好相遇的一个空间,在这里,大家有着不同的背景与观看经验,对于这些木构件有着不同层面的解读,也为它们带来了新的故事。


展览吸引了城里城外大小居民观展
从中我们也看到了大家对于传统木作以及地方文化遗产的兴趣,看到了大家对于古镇未来的期待。我们希望孙宅的展览空间可以成为古镇再生的一个起点和见证,同时也成为传播南方木作建筑文化遗产的一个窗口。于是我们通过公众号平台,找到了一些本地的“同好”,作为孙宅的志愿者。慢慢的,借由这个展览以及孙宅这一空间,我们希望它能够连接起本地的社区。基于此,我们正在与志愿者合作,收集地方的掌故,个人与地方的故事。我们以孙宅原先的主人孙士林作为理解地方的切入点,计划在不久的将来,从泗泾塘畔的孙宅出发,通过民间个人的讲述,呈现一个多面向的“泗泾故事”,而这一故事,也在上海“浦江叙事“之外的地方叙述:它亦是海派多元文化的一块重要的拼图。
古建筑木作法展展览时间:2019.9.13-12.31 9:00-17:30
展览地点:上海市松江区泗泾镇开江中路387号孙宅(上海交通大学建筑遗产保护教学科研实践基地)
(作者冯立系上海交大历史建筑勘查设计研究院建筑师)