这是一个经典125㎡三居,姜Sir却想挑挑毛病……
津云新闻

皮尺派姜Sir看户型图、样板间时,最喜欢带着精装思维。
比如,姜Sir会自动屏蔽掉所有开发商的预设,将每套户型先想象成空壳,然后提前设定各个空间的使用功能,再判断什么家具放在什么位置。就连每种家具的大致尺寸,头脑中也都有了一个大致轮廓。
而且,碰上一些存在问题的户型,姜Sir还会考虑哪些部位可以拆改,以便进行优化。
建议有购房计划的各位朋友,看房时不妨也从这样的角度观察、思考,可以避免很多陷阱。
今天,姜Sir再以一款标准的三室两厅户型为例,给大家进行一下讲解。
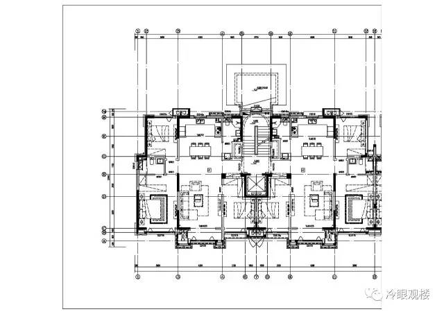
下面是天津龙湖天宸原著的125平方米三居户型,也是目前天津市场中比较经典的一款洋房三居产品,很多开发商纷纷追随和效仿。不过,在很多细节上,比如大尺度飘窗等,龙湖又做了一定的创新。
龙湖天宸原著这款户型南向整体面宽11.5米,扣除阳台的进深10.9米。开间进深比为1.06,属于一个比较舒适的比例。
从总体布局上,这是一款非常典型的南向三开间户型。客厅和两个卧室朝南,一个卧室和厨房、次卫朝北,主卫通过北向楼体开槽的方式做出了开窗。
再来看一下基础建筑图纸,看看每个空间的标尺。

点击可放大
龙湖这款户型,最大的特点在于餐厅和厨房的关系。
一般而言,这种基础版H三居,餐厨布局无外乎两种。一种像上面这样南北竖向布置,另一种是东西横向布置,如下图。

这种厨房在餐厅东(西)侧、餐厅带窗的布局,所占比例更大一些。但有一个小缺陷,就是只适合面积稍大的户型。而在紧凑三居中,开间往往不会那么充足,如此布置就会使得厨房、餐厅的开间都比较局促,往往餐桌只能靠墙放,一侧留通道进厨房。
而龙湖天宸原著这款户型,将厨房横了过来,令厨房、餐厅、客厅由南至北纵向布置。虽然餐厅失去了开窗,但却获得了几个好处:
客厅、餐厅、厨房的开间都有4.2米,尺度阔绰。如此以来,厨房的台面长度大大增加,有利于操作;餐厅横着摆下一张1.8米大餐桌,两侧都还能各留下约1.2米空间。
餐厅开间加大后,就可以将其作为一个交通中转,把其他功能区的门开向餐厅,中间摆上餐桌后,并不会影响人的同行。这样,就消灭了大走廊,减少了面积浪费。
厨、餐、客一字贯通式设计,非常符合目前世界上最流行的“LDK”概念,家庭公共功能区开放,有利于家庭成员之间的交流。

除了厨房、餐厅、客厅,其他三个卧室的尺度也比较合适。比如主卧开间3.8米,南向次卧开间3.2米,北向次卧开间3米,每一个空间摆放标准尺寸的家具都不感到局促。
而且,在一些细节上,也充分显示了设计师的用心。比如:
南向次卧的门口,特意向下挪了几十公分,这样门背后就可以再放下一组柜子。
主卧的飘窗长度有大约3米长,大大延展了室内的空间感。
次卫外预留了独立洗衣机位。
客厅外跨3米×1.2米的阳台,功能性更强,可休闲可晾衣可储物。

那么,龙湖这款户型,还有进一步优化的空间了吗?
姜Sir又询问了几个朋友,天津最著名的精装设计单位——赛拉维创始人,和天津旭辉设计师,都给出了相同的答案。

不过,经过比较其他一些优质户型的特点,并结合室内装修效果,姜Sir还是想出几点后面入住后可以改造的地方。当然,每种改造都会带来另外一些小瑕疵,这就看居住者自己的取舍了。
这并非意味着原户型有缺陷,仅仅是希望能给客户在未来装修时提供多一种选择。
第一部分,南向次卧的门口,如果从客厅北侧标黄的区域,挪到南侧标红的区域,北侧电梯井旁的那部分拐把空间,正可以进一步利用。
北侧朝玄关的位置,空色区域开门洞。这样就分割出一个独立的储藏间。这部分的空间大概有1.825米×1.8米,三面墙上做45公分进深的储物架,中间的空间还能放得下小孩骑的自行车。(绿色部分)
南向朝次卧内的部分,从隔壁储物间偷出60公分进深的空间,正好为次卧打造了一个1.825米宽的大衣柜。(蓝色部分)

这种设计,目前在万科四季花城、融创臻园等好几个项目都出现。但也有一个不利,就是回次卧必须穿过客厅,打破客厅完整性。只有在后期装饰上处理一下,比如装成隐形门。

第二部分,北向次卧的开门,如果从主卧门对面改到考餐厅一侧红色区域,那么就又可以增加一部分储物空间。
因为,餐厅开间足有4.2米,横着摆下一张1.8米长餐桌后,两侧仍各有1.2米。而1.2米已经是一个标准走廊的空间了,所以并不影响从餐厅进次卧。
而开门的位置和南侧之间留下60度公分,这样,北向次卧的衣柜就可以再延长1米。(蓝色区域)
主卧门对面的位置,进深大约有三四十公分,可以做一个展示架、书架,甚至可以把洗手台外移至此,形成干湿分离。这样就能增加主卫的使用空间了,甚至可以再做个独立淋浴房。(黄色部分)

第三部分,如果将原来的主卫门(黄色区域)封死,改在上面红色区域,那么就又可以增加主卧衣帽间的储藏空间。
一张1.8米款双人床加两个60公分宽床头柜,需要3米长度。由于主卧整体进深达到5.1米,因此可以将下图中的大床再向下移,进一步增加独立衣帽间的空间。
如果衣帽间宽度达到2米,那么就可以做成“U”型布局的三面衣柜,两面储物柜可以做58公分深,用来挂衣服;另一面可以做38公分深,用来放鞋、包,或者做衣物折叠区。
当然,这样有一个小瑕疵,就是入户门会正对主卫门,造成“一箭穿心”,不过也可在玄关利用软装规避。

有人注意到没?以上这些改造,姜Sir并未预留隔墙,完全都是利用双面储物柜来分割。
有人会问:那隔音问题如何解决?其实已经有现成技术,中间可以夹隔音棉,也可选择一些进口带隔音功能的背板。
如此设计,将会为室内释放出大量可利用空间。

以上这些改造方案,都是姜Sir自己通过观察平面户型图自己推演出的,并未实楼量尺,也有可能会遇到承重墙、梁而无法实现。
各位专业设计师勿介意。
现在,房价越来越高,很多户型也是越来越迷你。业主必须细扣每一毫米,充分利用好每一寸空间。Sir希望通过今天的推演,能给大家在挑选户型时提供一种全新的观察角度。
【本文来自微信公众号“今晚报”】