新中式、北欧简约风 设计师教你这样装修
华商报
原标题:新中式、北欧简约风 设计师教你这样装修



通过对一套新中式风格的房屋进行设计解析,从户型改造到后期的装饰设计,从事室内设计8年的设计师杨艺告诉大家新中式的设计要点。同时,杨艺提醒,当下十分受年轻人推崇的北欧简约风格,看似简单但想要装出效果,实际花费一点儿都不少。
传统元素+现代材质 新中式也会很时尚
【经典案例解析】
设计首先要满足功能,其次才是实现风格。这套新中式风格的房屋,布局中存在的典型缺陷在很多业主家也同时存在,但通过设计师的重新规划得到了改观,这个案例也能为更多的业主提供借鉴。
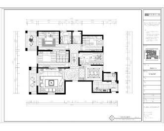
格局问题:
1.入户没有玄关,功能性缺失。
2.开发商赠送的挑空面积不能充分利用,略有浪费。
3.主卧内的衣帽间过小,衣柜的宽度不能满足衣物收纳的需求。
改造方法:
1.餐厅很长,通过石膏板轻质墙制作镶嵌式的柜体,可收纳衣帽和鞋子,用以取代玄关。同时也弥补了电视墙和餐厅墙不在同一水平线的问题(见右图改造1)。
2.通过和开发商协商,利用钢架延伸和水泥浇筑,将原本挑空的赠送面积变成了具有独立功能性的书房(见右图改造2)。
3.在不影响次卧使用功能的前提下,借用次卧面积,移动墙体,扩大衣帽间的面积(见右图改造3)。
新中式风格的表现形式:
1.借用传统元素做点缀。设计中使用了很多中式风格的经典元素,包括八角形吊顶、双包垭口、角花和拼花的运用。吊顶时采用极具现代风格的黑色碳钢收口,与地板上的拼花相呼应,以及改造电视墙和餐厅墙不在同一水平线的问题,都是为营造中式对称的风格。
2.现代材质的应用更具时尚感。吊顶上使用碳钢、电视背景墙是微晶石、沙发墙采用软包、地板瓷砖的拼花、墙面的银镜都是利用现代材质打破传统中式的沉闷感,让整个设计更具有时尚感。
3.设计为人服务,极具人性化。设计师考虑到中式风格里的拼花元素,会在日常生活中造成业主打扫困难。因此在电视背景墙的花格上封了一层玻璃,免去了业主落灰打扫的问题。
4.在家具的选择上,设计师建议业主选购造型简约现代的板木家具,更能凸显新中式的设计。
北欧风格简约不简单 装修花费比预计的要高
除了新中式受到消费者的热捧外,现在越来越多的年轻人也开始追求北欧的简约风格。设计师杨艺表示,很多消费者都有一个误区,认为简约风格就代表着装修会很简单,只需要很少的预算就能达到效果,但实际情况却恰恰相反。
杨艺介绍说,简约风虽然没有过多的装饰,但越是简单对材质和施工质量的品质要求越高,否则简约就会变成廉价。因此简约风的大量花费主要用在施工工艺上。
1.墙面。简约风的墙面不做过多造型处理,但对墙面的平整度要求很高,由于没有石膏线的遮挡,如果墙面不垂直,阴阳角走线不平整,将会破坏视觉美感。所以墙面处理是关键。
2.地面。很多简约风的设计中会使用到水泥铺地,消费者认为这种装修造价低。实际上想要达到同样的效果,地面需要经过环氧地坪处理,每平方米的造价在200~300元不等。
3.电路改造。为了达到视觉上干净简单的效果,同时又不影响使用的便利性。简约风格会设计大量的内置灯,如此一来电路上的改造费用就会远高于普通装修。
4.家具选购。简约风格需要在基础装修上注重施工品质,但不会有过多的造型设计。后期风格的营造主要靠具有设计感的家具实现,而具有设计理念的家具往往比普通家具售价要高。华商报记者 沈思媛 图